 
 Transform Your Entryway with a Functional Hall Tree
Is your entryway in desperate need of a makeover? Creating a stylish and functional entryway hall tree can be a game changer for your home. Not only does it provide a convenient place to sit while you put on your shoes, but it also offers ample storage for coats, bags, and miscellaneous items that usually clutter your space. This DIY project is an opportunity to create a statement piece that reflects your personal style while adding practical value to your home.
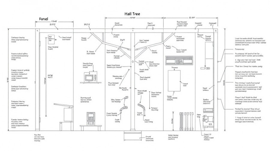
What is a Hall Tree, and Why Should You Consider Building One?
A hall tree is essentially a multifunctional piece of furniture that combines a bench, coat rack, and storage all in one. It can help organize your entryway, ensuring that you and your family have a designated spot for everything. Beyond practicality, a well-designed hall tree can enhance the aesthetic appeal of your home, welcoming guests and offering a glimpse of your style right as they walk in.
Getting Started: Planning Your Hall Tree
Before diving into construction, it's essential to outline your design and gather the necessary materials. The primary materials you’ll need include wood sheets, such as walnut or plywood, and a range of hardware like screws and hooks—these ensure durability and longevity.
In this project, you’ll be combining various elements to create a contemporary and sophisticated hall tree. As highlighted in Family Handyman, the project’s estimated cost is around $2000, factoring in materials and tools. However, the creation of a uniquely tailored hall tree may lead to an increase in your home’s value and functionality.
Key Features: A Combination of Style and Function
Your hall tree can be as unique as your personal taste. Designs can range from modern minimalist styles to rustic farmhouse charm. Drawing inspiration from the Handyman’s Daughter, showcases various design options, each with different materials and finishes that can transform your entryway into an organized haven.
Planning the Design: Key Considerations
When designing your hall tree, consider the following:
- Size: Measure your entryway space accurately to ensure your hall tree fits snugly without overwhelming the area.
- Storage Options: Consider how many hooks you need for coats and bags, as well as whether you need shelves for storage or display.
- Style: Think about the overall decor style of your home. A sleek, modern hall tree might work well in a contemporary home, while a rustic or farmhouse-inspired design can add warmth to a traditional space.
Building Your Hall Tree: Step-by-Step Guide
Once your design is finalized, it’s time to build. Gather your tools—like a miter saw, clamps, and a drill—essential for assembling the hall tree. For complexity, aim for an intermediate skill level, allowing your creativity to flow as you work with each piece of wood:
1. **Gather Materials:** Start by collecting all your wood materials based on your design. A combination of plywood and solid walnut can give a sturdy and elegant finish.
2. **Cut the Pieces:** Using a miter saw, cut your wood to the required dimensions, like the cutting list provided.
3. **Assembly:** Use wood glue and clamps to align and connect pieces. This step is where your design truly takes shape.
4. **Finishing Touches:** Apply a wipe-on polyurethane finish for a low-luster sheen that enhances the wood's natural beauty while providing protection.
Personalizing Your Hall Tree
Personal touches are what make your hall tree special. Consider adding features such as:
- Mirrors to create a sense of spaciousness.
- Colorful hooks to elevate the visual aspect.
- Decorative baskets for organized storage of small items like keys or mail.
These additions can help to make your hall tree not only functional but also a beautiful and inviting part of your entryway.
Conclusion: Embrace Your Creativity and Build
Creating your hall tree is a fulfilling project that goes beyond simple home improvement. Not only do you create a piece that’s tailored to your needs, but you also foster a sense of ownership and pride. Whether you’re an experienced DIYer or a beginner willing to roll up your sleeves, embarking on this project can significantly enhance your entryway, transforming it into a well-organized and welcoming space.
If you’re ready to take the plunge and build your own hall tree, gather your materials, unleash your creativity, and make your vision come to life! Remember that every home is a reflection of those who live there—don’t hesitate to express your style through custom designs. Happy building!
 Add Row
 Add Row  Add
 Add  
 



 
                        
Write A Comment